loading
  • DE-89073 Ulm, DE-89075 Ulm
  • 10/2016
  • Ergebnis
  • (ID 2-217826)

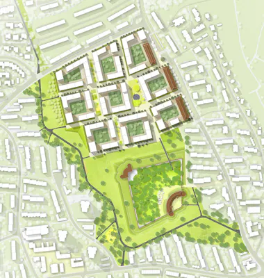
Hindenburgkaserne Ulm


  • 2. Preis

    © WESSENDORF/ Atelier LOIDL Landschaftsarchitekten Berlin GmbH

    Landschaftsarchitekten
    Atelier LOIDL, Berlin (DE) Büroprofil

    Mitarbeit
    Nina Dvorak

    In Zusammenarbeit mit:
    Architekten: Studio Wessendorf, Berlin (DE)

    Preisgeld
    18.000 EUR

    Erläuterungstext
    Liegt nicht vor.

    Beurteilung durch das Preisgericht

    Während der Weinbergweg eine städtebaulich wohltuend gegliederte bauliche Kante erhält entsteht in Nähe der Haltestelle an dem Mähringer Weg ein sinnfällig angeordneter kleiner Platz, der das Preisgericht überzeugt. Darüber hinaus werden die bestehenden Gebäude gut in die neue Bebauung integriert. Durch den gekonnten städtebaulichen Kniff der Drehung der 6 westlichen Blöcke entsteht im Inneren des neuen Quartiers ein richtig positionierter und gut dimensionierter Quartiersplatz. Gleichzeitig ergibt sich durch diese Maßnahme eine gekonnte Staffelung der westlichen Kante an dem Grünzug im Übergang zu der bestehenden Nachbarbebauung. Das Verkehrsnetz birgt die Möglichkeit einer robust einfachen und nicht hierarchischen Verkehrsführung. Die Anordnung der 3 erdgeschossigen Garagen wird kritisch gesehen da die Höhenmodellierung nachteilig und der Kostenvorteil nicht ersichtlich ist. Die Bestückung der Baufelder mit einer halboffenen Bauform und die differenzierte Höhenmodellierung überzeugen. Sinnvoll realistisch erscheint die Anordnung der Gewerbeflächen am dem Mähringer Weg und an dem Quartiersplatz sowie die Platzierung der Kita im südwestliche Block an der Grünfläche. Der Entwurf ist ein wertvoller Beitrag dieses Wettbewerbs da er die gestellte Aufgabe auf eine sehr selbstverständliche Art qualitätsvoll löst.


INFO-BOX

Angelegt am 27.10.2016, 09:59
Zuletzt aktualisiert 14.11.2016, 11:19
Beitrags-ID 4-129756
Seitenaufrufe 254