loading
  • SY Damascus
  • 05/2011
  • Ergebnis
  • (ID 2-75386)

Public Realm at Massar Rose Project 2010


  • Gewinner

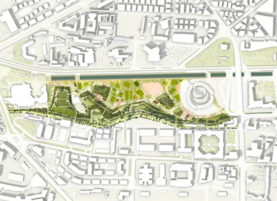
    ATELIER LOIDL / Lageplan

    Landschaftsarchitekten
    Atelier LOIDL, Berlin (DE) Büroprofil

    Erläuterungstext
    Massar wurde 2005 als nationales Bildungs- und Kulturprogramm für Kinder und Jugendliche durch den "Syria Trust of Development" ins Leben gerufen. Das wichtigste Projekt des Programms in Damaskus ist das Massar Rose Science Center nach Planungen des dänischen Architekturbüros Henning Larsen Architekten, das derzeit gebaut wird.

    Das Gelände des zukünftigen Massar Rose Parks vereint auf kleinem Raum einen Querschnitt der typischen Landschaftselemente der Oase von Damaskus: - der Steilhang, der das Flusstal des Barada River begrenzt, - die ehemalige Ghuta mit ihren Obstgärten und - der Fluss Barada selbst.

    Diese starken landschaftlichen Elemente werden als die entscheidenden Qualitäten des Ortes erkannt und sichtbar gemacht. Der Massar Rose Park wird zu einer Landschaft gestaltet, die für die Bewohner und Besucher von Damascus und insbesondere für die Kinder einen hohen Reiz zum Entdecken ihrer Heimat besitzt.

    Zukünftig wird es einen durchgängigen öffentlichen Park geben, der die umgebenen Quartiere und die wichtigen kulturellen Stätten von Damaskus, die Altstadt, das Massar Rose Center, die Universität und die Al Assad Opera miteinander verbindet.

    Beurteilung durch das Preisgericht
    Liegt nicht vor.

INFO-BOX

Angelegt am 22.06.2011, 16:38
Zuletzt aktualisiert 23.06.2011, 12:05
Beitrags-ID 4-45833
Seitenaufrufe 794